楚邦上易装饰售后投诉电话是多少?
热门资讯 4173
文章类型: 原创 阅读:2675发布时间:
写在前面
屋主本身喜欢购买国外的家具和家饰,特别委托擅长北欧设计风格和运用软装建构空间特色的北鸥设计为新家空间的造型。整体以明亮清爽的色彩为基调,佐以人字拼木地板和造型磁砖、壁纸带出设计美感,为解决屋主时常购买国外软装的需求,在墙面和布置上做了一些巧思,满足收纳同时作为居家装饰,配置出赏心悦目的幸福感北欧宅。
结构图

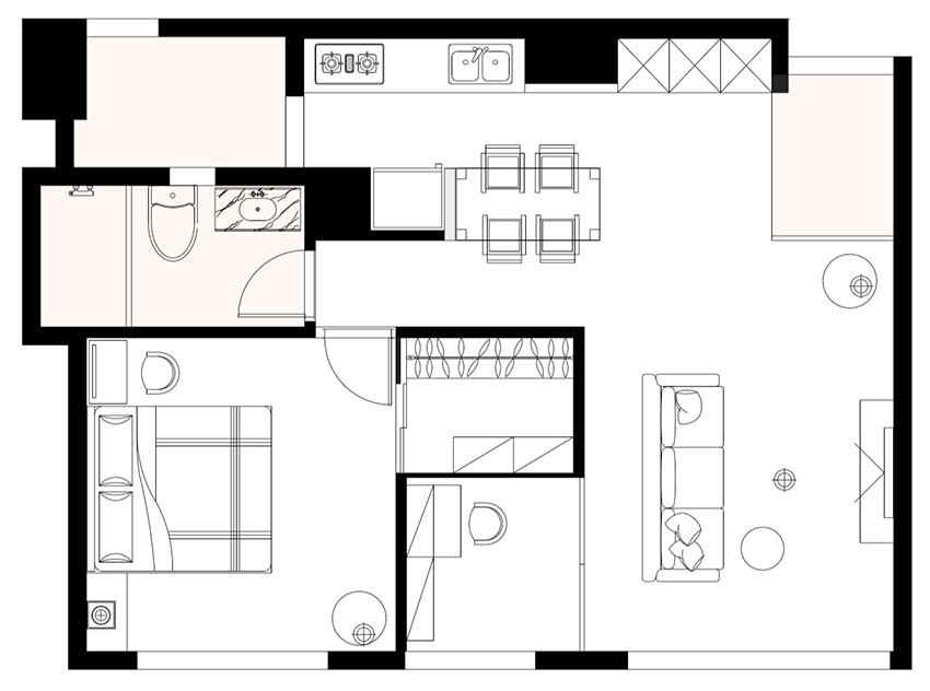
平面图

客厅

客厅中的主角是各式各样的软装物件,最抢眼的莫过于红色泡棉沙发,为 法国知名品牌ligne roset的经典产品TOGO。
客厅

铺满全室的人字拼木地板散发舒适温润气息,浅灰色和白色乳胶漆筑起舒适 静谧的空间调性,调光卷帘调节空间采光,整体明亮、干净且清爽
客厅

客厅

书房

仅摆放一组系统家具,让空间更能灵活运用,随屋主需求可作为电脑桌、书 桌、书架或橱物柜,大面积的落地窗提供阅读所需的充足光线。
书房

餐厅

因为空间又限,所以厨房采用了开放式厨房,白色的方框墙砖为厨房整体增 加了一些明亮干净的色彩
餐厅

餐厅

在收纳上厨房也不逊色,展示架边的收纳柜不仅可以放置日常杂物也可以放置厨房大物件。
餐厅

卧室

简洁不是时尚的大白墙,深蓝的背景墙与窗帘相互呼应,奇特的床头柜和挂在墙体的储物柜为整体增加了一丝童趣
卧室

衣帽间

谁说小房子不能有大储物,本设计中的衣帽间丝毫不逊色于大户型的衣帽间哦
卧室

卫生间

卫生间

深蓝防水漆和白色磁砖交织出优雅品味,并以黑白棋盘格花砖增添丰富变化 性,金色铜器和把手则让空间质感更为提升,再挂上一幅画,简单的色彩和 配置就能缔造美感生活。